La commune a initié depuis 2018, la création d’un nouveau quartier : La Tannerie, qui comprend un secteur d’habitat et une zone artisanale.
En continuité avec l’emprise urbaine existante, l’opération s’inscrit pleinement dans le projet d’aménagement de la commune, avec pour principale vocation de satisfaire aux attentes des nouveaux arrivants notamment des familles et des jeunes ménages. Ce sont donc près de 300 logements qui sont prévus.
Afin de pouvoir se loger dignement à un prix raisonnable, chaque commune du département s’est engagée à construire.
« A La Bouëxière, les habitants ont validé dès 2015 lors des ateliers de concertation du SCOT et du PLU, un rythme maîtrisé de 40 nouveaux logements par an. » rappelle Stéphane Piquet.
Le principal secteur de développement va se situer à la Tannerie. Près de 17Ha vont être ouverts progressivement à l’urbanisation. L’équipe municipale porte des valeurs de solidarité entre toutes les générations, « le prix d’achat des terrains devra permettre particulièrement aux jeunes ménages de faire leur première acquisition » souligne Gilbert Le Rousseau.
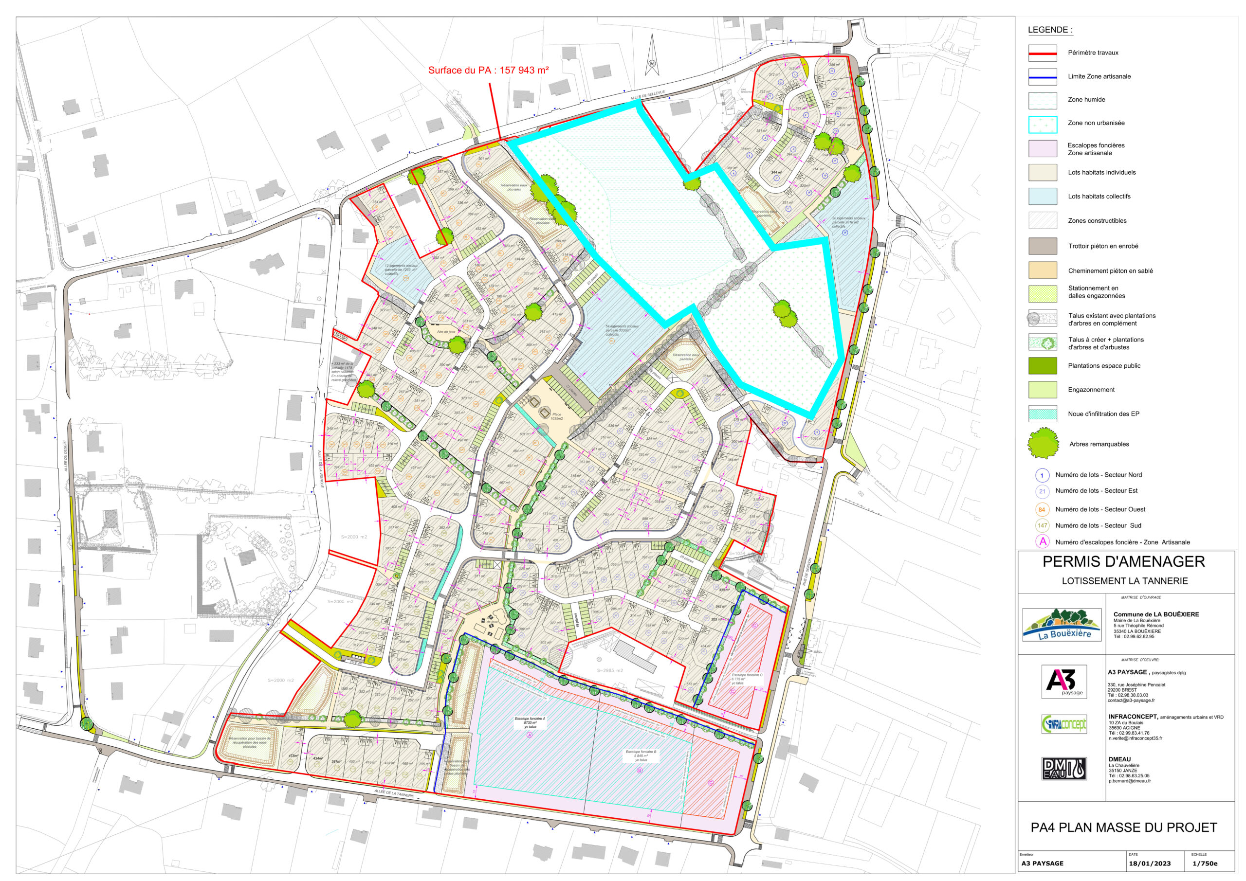
Le site de La Tannerie est marqué par la présence d’une zone humide et de nombreuses haies bocagères. Ces éléments constituent des réservoirs essentiels de biodiversité qu’il convient de protéger tant sur le plan paysager qu’environnemental. Les élus de l’équipe municipale avec la Commission Bocage ont souhaité faire de ce site, un espace de régénération du bocage.
Déterminants dans les choix de conception, les espaces naturels ont été préservés et intégrés à la vie du quartier.
Ils constituent de véritables poumons verts, lieux de promenades et de cohésion sociale, qui contribuent à la gestion naturelle des eaux pluviales. Comme au lotissement de Bellevue, il sera imposé aux futurs acquéreurs un système de récupération d’eau de pluie.
De nombreuses études démontrent les bénéfices des espaces verts sur la santé et sur la qualité de vie des populations. Largement végétalisé, le quartier donnera la part belle aux essences locales. Une coulée verte piétons, vélo sera aménagée. Cette coulée verte permettra de rejoindre les transports en commun en toute sécurité, en lien avec un projet de parking multimodal dans la zone artisanale de Bellevue.
Dans la logique d’un vaste réseau de cheminement doux, cette voie douce permettra aussi de relier le centre-bourg, les quartiers voisins, mais également les écoles, commerces, zones d’activités, etc.
En même temps, une organisation raisonnée de l’éclairage public permettra d’importantes économies d’énergie au travers du recours aux énergies renouvelables.
L’équipe municipale a aussi choisi de n’éclairer que les circulations piétonnes. L’intensité et le nombre de points lumineux seront limités afin de sécuriser les déplacements doux tout en luttant contre la pollution et les nuisances lumineuses.
